
BUTZ + WÖLBERN
PLANUNGSGESELLSCHAFT MBH
ARCHITEKTEN
RINGSTR. 14
30457 HANNOVER
FON 0511-971 72 0
EMAIL info@b-w-p.de
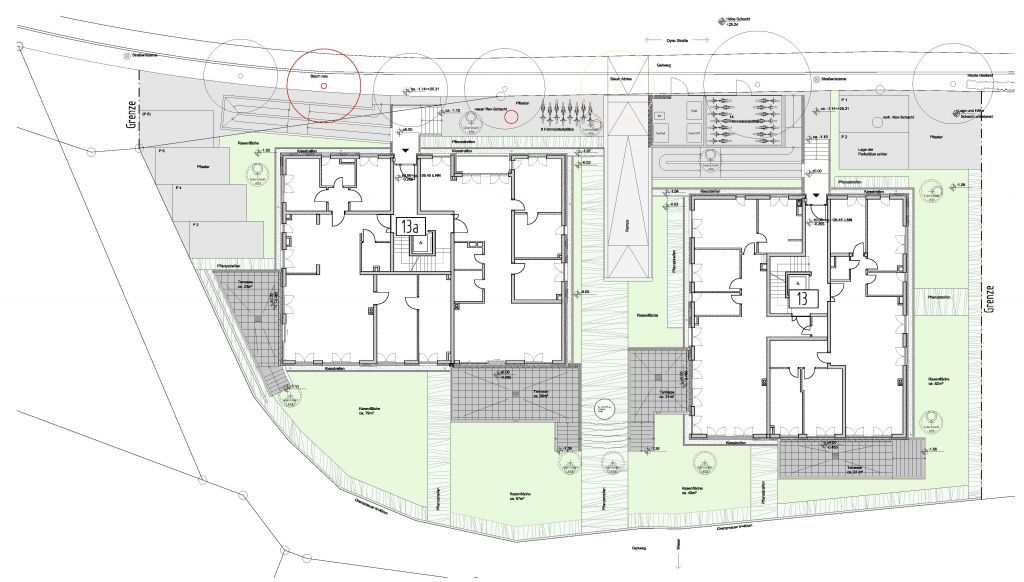
Als verbindende Elemente zwischen Gewerbegebiet, Einfamilienhäusern sowie gegenüberliegender Altstadt enstanden am Weserufer 2 Gebäude mit insg. 11 Wohnungen, verbunden durch eine gemeinsame Tiefgarage.
Die aufgelöste Blockstruktur mit zurückspringenden Terrassen und auskragenden Balkonen ermöglicht Privatsphäre trotz exponierter Lage mit einzigartigen Ausblicken , Kontraste von dunklem Verblender und hellem Putz schaffen eine spannungsvolle Fassade. Eine Holzpelletheizung, dezentrale Be- und Entlüftungsanlagen mit Wärmetauscher, barrierefreie Grundrisse sowie die bis zum extremsten Hochwassser dichte Tiefgarage sind weitere Merkmale des hochwertigen Wohnbaus. Durch die einzigartige Lage am Fluss ergeben sich einmalige Blickbezüge in die Umgebung
Die Gebäude wurden von der Architektenkammer Niedersachsen für den Tag der Architektur 2017 ausgewählt und können am 25. Juni 2017 im Rahmen von Führungen besichtigt werden. Weitere Info dazu zeitnah unter www.aknds.de.
Fertigstellung: Frühjahr 2017, Leistungsphasen 5-9 HOAI